


Chilbo Culture Centre for Youth
Location:
Suwon-Si, China
Type:
Youth Center
Architects:
Studio in Loco, Utopian Architects
Area:
1,647 meters squared
Year:
2017

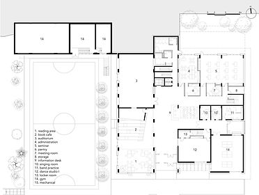
1st Floor

2nd Floor
The design of this space is broken up into "noise zones" and "working areas" to allow a peaceful balance of work and play throughout the facility. The light neutral colors and materiality brings the users the feeling of peace and stability, as well as the ample lighting provided by large windows whenever possible. The ceilings in most rooms are open to see the pitched roof to provide a wide, airy feeling, allowing the natural light to travel through the spaces. There is also balance in the positioning of furniture in both public and private areas providing opportunity for collaboration and time to concentrate working alone. There is built-in seating to allow for individual relaxation spaces in some walls as well as window benches for a little rest when utilizing the space.
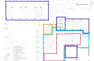
Public vs Private
Public spaces make up about 90% of the total square footage of the building, both first and second floor. The public spaces are central to the main flow of foot traffic, allowing the private spaces to have their own area off to the side away from noise and travel.

1st Floor
Private
Public

2nd Floor
Spatial Organization

Linear
Radial
Cluster
1st Floor

The spatial organization strategies are done to group together similar spaces and help control the flow of travel throughout the space in a logical manner.
2nd Floor
Circulation
The primary paths of travel mainly exist in the main hallways, allowing the secondary circulation to show different ways to come off of the path for specific room needs, and tertiary paths are less common paths used, typically coming off of the secondary paths.
Primary
Central Node
Secondary
Vertical Circulation
Tertiary

1st Floor

2nd Floor
Spatial Relationships

Spaces Within Spaces
Spaces Linked by Common Space
Interlocking
Adjacent
1st Floor

2nd Floor
The spatial relationships are kept simple to accommodate the simple design and circulation.
Fenestration
The large windows on the building envelope ensure ample natural lighting in all spaces to cut down on energy usage and allow observation of the outdoors which has proven to be beneficial for the mental well-being and productivity of the users.

Windows
Doors
1st Floor

2nd Floor
All information and plans on Youth Recreation & Culture Center was gathered from https://www.archdaily.com/883360/chilbo-culture-centre-for-youth-studio-in-loco-plus-utopian-architects.
